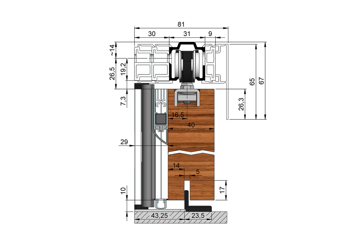
HELM MK-L 80 H 196
Tight closing sliding door system for leaves up to 80 kg, wall installation with 30 mm spacer profile and pelmet
- for interior sliding doors made of timber
- sealing system:
- effective against sound, draughts and odors
- sealed to the wall with a magnetic sealing system
- no door frame or stop casing required
- can be operated easily due to low opening forces
- trolleys: height adjustable even after installation, with load-bearing pendulum insert for a long service life
Leaf weight
max. 80 kg
Leaf thickness
40 mm
Leaf width
min. 510 mm (without damper and soft closing device)
min. 760 mm (with damper and soft closing device on one side)
max. 2.000 mm
Set contents
| Quantity | Article |
| 1 pc. | HELM 53/73 track, drilled on the side |
| 2 pc. | HELM spacer profile, 15 mm, drilled |
| 1 pc. | HELM clip-on pelmet, 65 mm, with spacer profile, 9 mm |
| 1 pc. | HELM end cap set |
| 2 pc. | HELM 73 trolley with ball bearing |
| 2 pc. | HELM 73 V flange with support bolt |
| 2 pc. or 1 pc. each | HELM 65 P door catcher (when selecting "without damper and soft closing device") or HELM 65 P door catcher, HELM SmartStop FG 80 damper and soft closing device (when selecting "damper and soft closing device on one side") |
| 1 pc. | HELM four-sided sealing system (bottom guide included) |
*clip-on pelmet and end caps black matte coated, track and spacer profiles silver anodised



